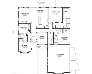
The Danzer is a spacious single story floor plan with a convenient side-loading three car garage. Entering into the foyer, you are met with beautiful columns guiding you into the bright formal-dining space. Across from the dining room are two generous bedrooms with a connecting jack-and-jill style bath. Inside the home opens up more into the bright Great Room, expansive Kitchen, and convenient Breakfast area. This entire area is illuminated by a wall of windows and doors opening up to views of your backyard and covered patio perfect for a BBQ. Behind the kitchen is the gorgeous Master Suite with a spa-like bathroom, featuring a walk-in shower and soaker tub. Tucked away for privacy is a fourth bedroom with a walk-in closet, a third bathroom, and a utility room.
Estimated Completion Date – Apr 2022

