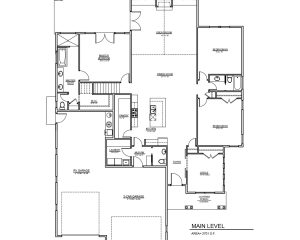
The Mayne floor plan by Oakmont is the perfect design for families. Featuring a long, open-concept living area, the Mayne is centered around a vaulted Great Room with a stone fire-place and built-in cabinetry. The open Kitchen features a long, galley pantry and stainless steel Bosch appliances. The convenient Home Office is just off the open Foyer. Two spacious bedrooms and a bathrooms sit together at the side of the house. Across the home is the Master Suite, with double doors leading out to the open covered patio for relaxing time in your dream backyard. Upstairs is a Bonus Room and bathroom waiting to become your dream workspace, playroom, or home gym. The Mayne also features a RV garage with plenty of space for your toys and hobbies.
Estimated Completion Date – Feb 2022









